






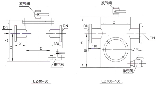
一、立式除污器
本立式除污器为直通式除污器。水从一侧接管进入筒体内,另一侧接管与筒体内的滤网孔管相连,过滤网孔管是由许多直径为3.5 -4 毫米的小孔构成。水中的杂质颗粒被网孔滤除,积存在筒体的底部,无杂质颗粒的水经过滤网孔从改厕接管流出。
排污时打开排污阀把积存在下部的杂质污垢排出。在除污器入口与管道之间应装一阀门,排污时将此阀门关闭,打开排污阀,使水从过滤网孔里到流出,这样可以使附着在网孔管外部的杂质冲掉。
本立式除污器的工作压力为 1.0Mpa 。


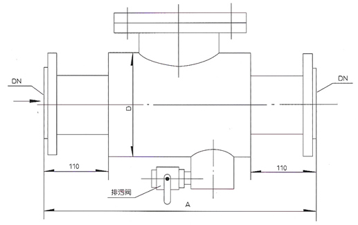
二、卧式除污器
本卧式除污器为直通式除污器,其工作原理与立式除污器相同,水从一侧接管进入筒体内,另一侧接管与筒体内的滤网孔管相连,过滤网孔管是由许多直径为 3.5 毫米的小孔构成。水中的杂质颗粒被网孔滤除,积存在筒体的底部,无杂质颗粒的水经过滤网孔从改厕接管流出。
排污时打开排污阀把积存在下部的杂质污垢排出。在除污器入口与管道之间应装一阀门,排污时将此阀门关闭,打开排污阀,使水从过滤网孔里到流出,这样可以使附着在网孔管外部的杂质冲掉。
本卧式除污器的工作压力为 1.0-1.6Mpa 。


三、旋流式除污器
旋流式除污器的工作原理是应用旋转离心分离原理设计的。具有一定流速的水从除污器的侧边接口流入,进入筒体后延筒体周围形成旋流、质量较重的泥沙等杂质在离心力和重力的作用下向外运动到筒体内壁,向下旋动落日下部的积污斗中,水从中央管的过过滤网向上流出,网孔直径 3.5-4 毫米。
排污时打开下部的牌无法将积存的污垢杂质排出。粘附在滤网上的污垢可打开观察孔盖滤除。
本旋流式除污器的工作压力为 1.0—1.6MPa 。

